Buono/abitabile €335.000,00 - Vendita
Appartamento con accessi indipendenti, resede privato e terrazza abitabile, Via delle Panche, Careggi, Firenze.
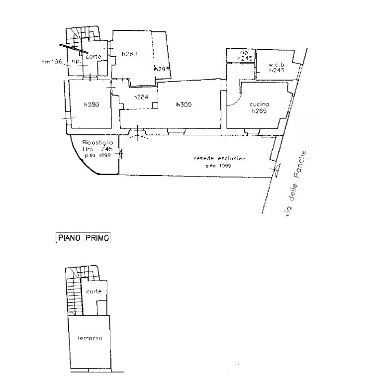
Via delle Panche altezza Via Calò, si propone in vendita appartamento con ingressi indipendenti (frontale e tergale), resede pavimentato di circa mq. 32 con ripostiglio di forma semicircolare di mq. 8 circa (che potrebbe essere facilmente messo in comunicazione diretta con l’appartamento), grande zona giorno-living di mq. 27, cucina abitabile, servizio (con finestra, piatto doccia e predisposto lavatrice) e ad un primo ripostiglio; a sinistra dell’ingresso troviamo invece una camera singola (che potrebbe essere collegata al ripostiglio semicircolare di cui prima) ed una matrimoniale con porta-finestra di collegamento ad una corte interna e scale che conducono ad una graziosa terrazza abitabile di mq. 12; il tutto in buonissime condizioni generali, finestre in pvc con doppio vetro, porta blindata, impianto di allarme, termosingolo. Basse le Spese condominiali. Vicinissimo al polo ospedaliero-universitario di Careggi, a zone verdi di Serpiolle e Castello oltre che a tanti tipi di negozi di ogni genere. Libero subito.
Classe energetica F con EPgl,nren = 246,49 kWh/mq anno e EPgl,ren = 1,52 kWh/mq anno
Il presente annuncio nelle foto allegate e nel testo non hanno valore contrattuale.







































